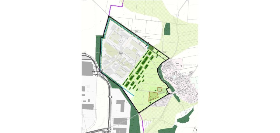
Die Veranstaltung wurde vom stadtLabor Leipzig in Zusammenarbeit mit der Stadt Leipzig sowie der Stadtverwaltung Taucha organisiert. Nach der Begrüßung durch den Bürgermeister diskutierten die Teilnehmenden in fünf moderierten Arbeitsgruppen zentrale Aspekte des Projekts: Bebauungsplan und Grünflächen, Lärmschutz, Verkehr, Regenwasserbewirtschaftung sowie wirtschaftliche Entwicklung. Die Ergebnisse der Gruppen wurden anschließend im Plenum vorgestellt und gemeinsam reflektiert.
Stadtrat lehnt Bürgerentscheid ab
Am darauffolgenden Tag, dem 19. Juni 2025, entschied der Stadtrat der Stadt Taucha über die Durchführung eines Bürgerentscheids zum weiteren Fortgang des Bebauungsplanverfahrens. Die zur Abstimmung stehende Frage lautete:
„Sind Sie dafür, dass die Stadt Taucha das Bebauungsplanverfahren ‚GI/GE Merkwitz‘ im Ortsteil Merkwitz (mit Anbindung über die Straße ‚BMW-Allee‘ in Leipzig) fortführt?“
Von den 21 anwesenden Ratsmitgliedern stimmten 12 mit „Ja“ und 9 mit „Nein“. Damit wurde die erforderliche Zwei-Drittel-Mehrheit gemäß § 24 Abs. 1 SächsGemO nicht erreicht. Der Antrag wurde abgelehnt – ein Bürgerentscheid am 17. August 2025 wird somit nicht stattfinden.
Wie geht es nun weiter?
Die Stadt Taucha verfolgt das Bebauungsplanverfahren zunächst weiter. Im Herbst 2025 wird der Plan in die Phase der öffentlichen Auslegung gehen. Dabei werden auch die Träger öffentlicher Belange in das Verfahren einbezogen.
Da es sich beim Bebauungsplan um eine sogenannte Angebotsplanung handelt, wird die Fläche nicht automatisch bebaut. Nur bei konkretem Interesse von Investoren und in enger Abstimmung zwischen der Stadt Leipzig und der Stadt Taucha wird über die Ansiedlung von Unternehmen entschieden.
Der Bebauungsplan wird mit einer Förderquote von 80% durch die SAB-Förderrichtlinie RegioPlan unterstützt.
Weiterführende Informationen/FAQ/Rückblick Infoveranstaltung gibt es hier.


