In der öffentlichen Sitzung des Stadtrates am 16.05.2024 wurden folgende Beschlüsse gefasst:
Haushalt 2024 - Konkretisierung und Modifizierung der Haushaltsmittel für das Budget "Masterplan Flughafen" Der Stadtrat der Stadt Taucha beschließt in seiner Sitzung am 16.05.2024 die Konkretisierung und Modifizierung der Haushaltsmittel für die Maßnahmen im Budget „Masterplan Flughafen“ für das Haushaltsjahr 2024. Die mittelfristige Finanzplanung bis derzeit 2027 ist davon inbegriffen. Durch aktuelle Planungs- und Genehmigungsstände zu den einzelnen Projekten ist dieser Beschluss erforderlich. Durch den Beschluss werden die Planansätze unmittelbar für den Haushalt der Stadt Taucha wirksam. Ja-Stimmen: 17, Nein-Stimmen: 0, Enthaltungen: 0, Befangenheit: 0 |
Verkauf von Grundstücken Der Stadtrat der Stadt Taucha beschließt in seiner Sitzung am 16.05.2024 den Verkauf des Grundstücks Sandsteinstraße 4, Flurstück 223 mit einer Größe von 1.015 m², Grundbuchblatt 1814 der Gemarkung Döbitz als erschlossenes Bauland an den Bieter 3 zum Preis von 296.000 EUR. Der Bürgermeister wird beauftragt, den notariellen Vertrag abzuschließen und alle mit der Umsetzung des Vertrages stehenden Rechtsgeschäftes zu tätigen. In der Anlage sind die Bieter aufgelistet; aus datenschutzrechtlichen Gründen werden diese nicht öffentlich zugänglich gemacht. Ja-Stimmen: 17, Nein-Stimmen: 0, Enthaltungen: 0, Befangenheit: 0 |
Vergabe von Leistungen - Los Küchenausstattung - Erweiterung Kita Flohkiste Der Stadtrat der Stadt Taucha beschließt in seiner Sitzung am 16.05.2024 für den o. g. Auftrag den Zuschlag an den Bieter Nummer „4“ zu vergeben. Ja-Stimmen: 17, Nein-Stimmen: 0, Enthaltungen: 0, Befangenheit: 0 |
Auftrag Planungsleistung LP 4-8 - Ersatzneubau Bauhof Sozialtrakt Der Stadtrat der Stadt Taucha beschließt in seiner Sitzung am 16.05.2024 die Planungsleistungen für die Objektplanung „Ersatzneubau Bauhof Sozialtrakt“ auszulösen. Der Auftrag soll an den Bieter Nr. 1 vergeben werden. Ja-Stimmen: 17, Nein-Stimmen: 0, Enthaltungen: 0, Befangenheit: 0 |
Bebauungsplan Nr. 70 "GE/GI Merkwitz" - Auftrag Planungsleistungen Der Stadtrat der Stadt Taucha beschließt in seiner Sitzung am 16.05.2024 die Planungsleistungen für den Bebauungsplan Nr. 70 „GE/GI Merkwitz“ auszulösen. Der Auftrag soll an den Bieter Nr. 1 vergeben werden. Ja-Stimmen: 17, Nein-Stimmen: 0, Enthaltungen: 0, Befangenheit: 0 |
barrierefreier Ausbau Bushaltestelle Winneberg Taucha Der Stadtrat der Stadt Taucha beschließt in seiner Sitzung am 16.05.2024 für o. g. Bauvorhaben die Vergabe an den Bieter Nr. 1 mit einer Bruttosumme von 65.553,98 €. Ja-Stimmen: 17, Nein-Stimmen: 0, Enthaltungen: 0, Befangenheit: 0 |
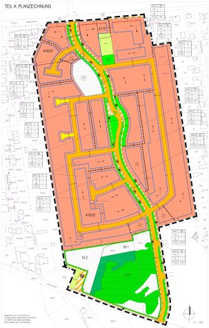
Bebauungsplan Nr. 66 "Waldblick" - Abwägungsbeschluss Der Stadtrat der Stadt Taucha beschließt in seiner Sitzung am 16.05.2024 die im Rahmen der 2. Behörden- und Öffentlichkeitsbeteiligung eingegangenen Hinweise, Anregungen und Bedenken entsprechend der Anlage zu berücksichtigen. Planzeichnung: Ja-Stimmen: 17, Nein-Stimmen: 0, Enthaltungen: 0, Befangenheit: 0 |
Vergabe von Bauleistungen - Ermächtigung des Bürgermeisters - Maßnahme „Umbau Kita Tausendfüßler im 1. OG als Hort für die 3. Grundschule“ Bau- und Ausbaulose Der Stadtrat der Stadt Taucha beschließt in seiner Sitzung am 16.05.2024 für die Vergabe von Bauleistungen für die Bau- und Ausbaulose der Maßnahme „Umbau Kita Tausendfüßler im 1. OG als Hort für die 3. Grundschule“ den Bürgermeister, Herrn Tobias Meier, zu ermächtigen. Um die Maßnahme hinsichtlich der Vergabe und Beauftragung der Leistungen termingerecht durchführen zu können und um Verzögerungen während der sitzungsfreien Zeiten zu vermeiden wird der Bürgermeister ermächtigt, die Vergaben zu beschließen. Ja-Stimmen: 11, Nein-Stimmen: 5, Enthaltungen: 1, Befangenheit: 0 |
Vergabe von Bauleistungen - Ermächtigung des Bürgermeisters - Maßnahme Umbau Bowlingdschungel zur Erweiterung Kita Flohkiste - Los 27 Außenanlagen Der Stadtrat der Stadt Taucha beschließt in seiner Sitzung am 16.05.2024 für die Vergabe von Bauleistungen, Los 27 Außenanlagen, der Maßnahme „Umbau Bowlingdschungel zur Erweiterung Kita Flohkiste“ den Bürgermeister, Herrn Tobias Meier, zu ermächtigen. Ja-Stimmen: 16, Nein-Stimmen: 0, Enthaltungen: 1, Befangenheit: 0 |
Vergabe von Leistungen - Ermächtigung des Bürgermeisters – Los Ausgabeküche - Mensa Oberschule Taucha Der Stadtrat der Stadt Taucha beschließt in seiner Sitzung am 16.05.2024 für die Vergabe von Leistungen für die Maßnahme „Neubau der Zweifeldsporthalle mit Mensa an der Oberschule Lieferung und Montage der Ausgabeküche“ den Bürgermeister, Herrn Tobias Meier, zu ermächtigen. Ja-Stimmen: 17, Nein-Stimmen: 0, Enthaltungen: 0, Befangenheit: 0 |
Tobias Meier
Bürgermeister


